Immobile storico di circa 508 mq con volte a stella e ampio terrazzo a livello nel cuore di Martano Case a Martano

€ 203,000
Codice: A611
Tipo di proprietà: Dimore Storiche
Superficie (M 2)
508

Info

  • Anno di costruzione: 1880

Servizi

  • Area Solare
  • Centro storico
  • Deposito
  • Garage
  • Locale Commerciale
  • Volte a stella

Descrizione

DIMORA STORICA CON VOLTE A STELLA E AMPIO TERRAZZO A LIVELLO NEL CUORE DI MARTANO

Sicuro Immobiliare è lieta di presentare in vendita un immobile che racchiude il fascino autentico della tradizione salentina.

Nel cuore storico di Martano, proponiamo un affascinante immobile cielo-terra da ristrutturare, caratterizzato da elementi architettonici tipici delle dimore d’epoca e da un importante potenziale di valorizzazione.

La proprietà sviluppa una superficie di circa 508 mq, oltre terrazzi, offrendo ampi spazi e numerose possibilità progettuali per chi desidera realizzare un intervento di recupero di grande personalità.

Una soluzione unica, capace di raccontare la storia del territorio e di offrire interessanti opportunità per chi desidera creare un progetto su misura, nel rispetto della sua identità originale.

Caratteristiche principali

Superficie complessiva di circa 508 mq, oltre terrazzi

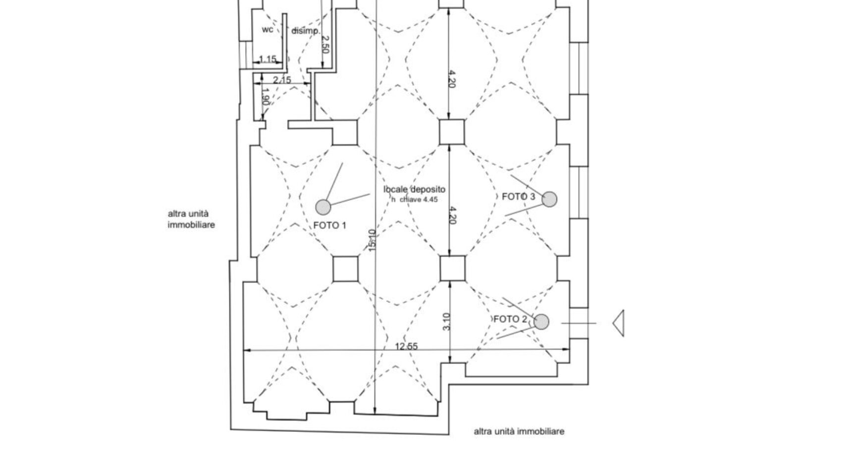
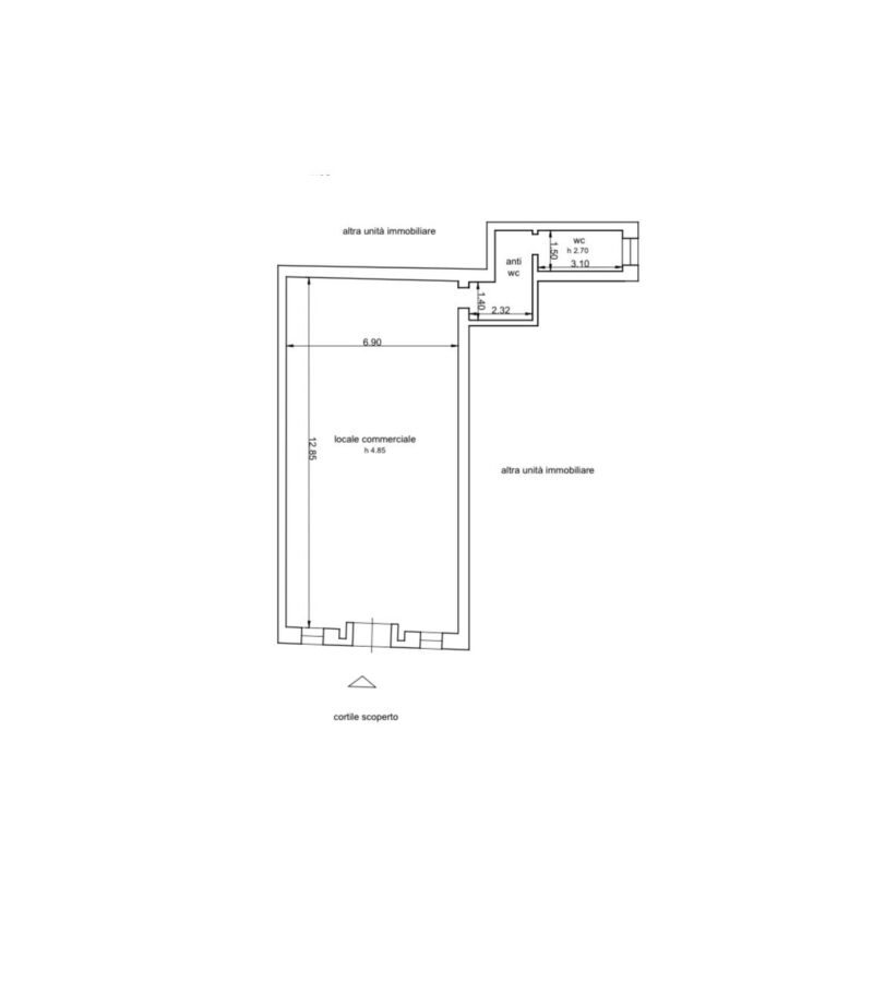
4 ampi vani attualmente accatastati con destinazione d’uso deposito e locale commerciale, ideali per laboratorio artigianale, atelier, studio professionale o spazio multifunzionale

Area solare di esclusiva proprietà con ampio terrazzo a livello, perfetto per creare una zona relax o conviviale sotto il cielo del Salento 🌅

Volte a stella con altezza di circa 4,85 m, elemento distintivo dell’architettura storica locale

Solai con voltine, dettaglio strutturale di grande fascino e autenticità

• Ambienti luminosi grazie alla presenza di ampie aperture tra porte e finestre, che donano respiro agli spazi

Un progetto da immaginare e valorizzare

L’immobile conserva intatto il fascino delle dimore storiche salentine e rappresenta una base ideale per un progetto di recupero architettonico di pregio.

Con il supporto di professionisti del territorio potrai analizzare la fattibilità della tua idea e trasformarla in un progetto di valore, perfettamente integrato con le caratteristiche uniche dell’immobile.

Una soluzione pensata per chi desidera investire nel Salento o per chi sogna di dedicarsi alla riqualificazione di uno spazio ricco di storia e personalità, valorizzando ogni dettaglio con sensibilità e visione.

Perché scegliere Sicuro Immobiliare

Da oltre 18 anni siamo un punto di riferimento nel Salento, offrendo competenza, affidabilità e una profonda conoscenza del territorio.

Ti accompagniamo in ogni fase della compravendita con attenzione, trasparenza e professionalità, valorizzando ogni immobile con strategie mirate e consulenza qualificata.

Una proprietà esclusiva per chi cerca carattere, autenticità e un investimento capace di distinguersi nel tempo.